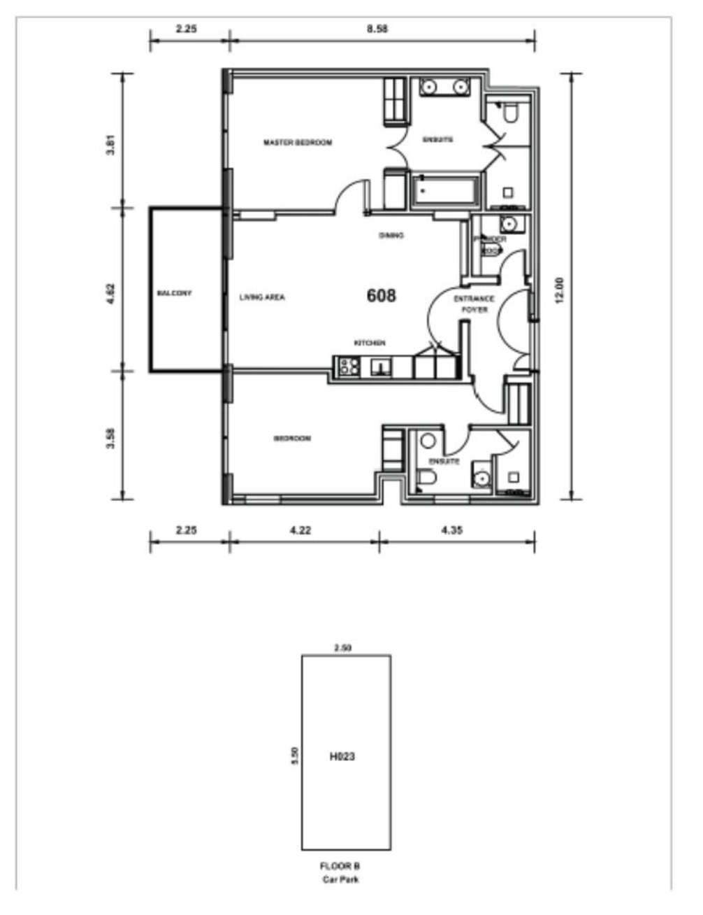
Das Apartment 608 bietet auf 113 m² (1.215 sqft) eine großzügige 2-Schlafzimmer-Aufteilung mit weitläufigem Wohnbereich, offener Designküche und Balkon mit Panoramablick auf den Arabischen Golf und die Skyline von Dubai.
Die Einheit ist voll ausgestattet und aktuell im Kurzzeitvermietungsprogramm – ideal für Investoren, die sofortige Einnahmen mit langfristiger Wertsteigerung kombinieren möchten.
Palm Jumeirah gilt als eines der weltweit prestigeträchtigsten Wohn- und Urlaubszentren. In direkter Umgebung finden Sie:
Die Lage bietet nicht nur unvergleichliche Aussichten, sondern auch ein Höchstmaß an Privatsphäre, Komfort und Infrastruktur.
Preis: 6.018.000 AED (≈ 1.648.800 USD)
Status: Bezugsfertig / Kurzzeitvermietet
Lage: West Crescent, Palm Jumeirah
Renditepotenzial: 7–9 % p. a. durch Short-Term Rentals
Markenqualität: 5
Resort-Komplex mit internationalem Hotelbetreiber
.png)
